Expanding Upwards: Second Story Additions for Growing Families in Woodridge
Expanding your home can be an exciting venture, especially for growing families. If you find yourself needing more space but love your current neighborhood in Woodridge, adding a second story might be the perfect solution.
This type of renovation allows you to increase your living space without sacrificing yard area. It’s a smart way to accommodate a growing family while staying in the home you cherish. Let’s explore the key benefits, critical considerations, design tips, and ways to keep disruptions minimal during this transformative project.
Benefits of Adding a Second Story to Your Home
Adding a second story to your home offers numerous benefits, especially for growing families who need more space. Here are some key advantages:
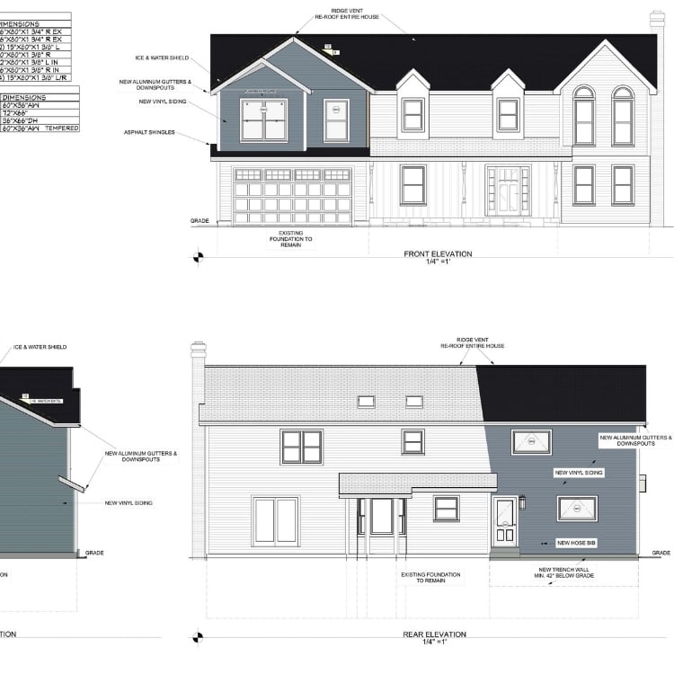
More Living Space: The most obvious benefit is the additional living space. Whether you need extra bedrooms, a new bathroom, or a larger family room, a second story can provide the space you need without requiring you to move. You can design this new space to fit your family’s needs perfectly.
Preserve Yard Space: Building upwards allows you to preserve your yard space. If you have a backyard that your family enjoys, a second story ensures you don’t have to sacrifice that outdoor area for more indoor space. This way, you keep your garden, play area, or relaxation spot intact.
Increase Property Value: A well-executed second story addition can significantly increase your home’s value. Additional square footage and modern amenities can make your home more attractive to future buyers. It’s an investment in your future, offering both immediate benefits and long-term gains.
Customized Design: With a second story, you have the opportunity to customize the design to your liking. Unlike just renovating existing space, this gives you a blank canvas to create rooms tailored specifically for your family’s lifestyle and preferences.
Critical Considerations Before Starting the Project
Before diving into a second story addition, consider several critical factors to ensure the project’s success. By partnering with a Design Build Remodeling Firm like J&J Construction, you eliminate the need to coordinate with multiple parties—they will manage everything in-house from start to finish.
Structural Integrity: Assess your home’s current structure to determine if it can support an additional story. A professional contractor can conduct this evaluation. You may need to enhance your home’s foundation or frame to handle the new load.
Zoning Laws and Permits: Check local zoning laws and building codes in Woodridge. Specific regulations may apply to second story additions, including height restrictions and aesthetic guidelines. Secure the necessary permits to avoid legal issues and delays.
Budget and Financing: Establish a clear budget for your project. A second story addition is a significant investment, so plan your finances accordingly. Obtain quotes from experienced contractors and consider financing options if needed. Ensure your budget includes a buffer for unexpected expenses.
Design Compatibility: Plan how the new addition will blend with your existing home. The design should complement your current structure and look seamless. Work with a skilled architect to achieve a cohesive appearance that enhances your home’s overall aesthetic.
Impact on Daily Life: Consider the impact of construction on your daily life. Adding a second story is an extensive project that can disrupt your home environment. Plan for potential noise, dust, and limited access to certain areas. Discuss timelines and strategies with your contractor to minimize inconvenience.
Addressing these critical considerations can ensure a smoother and more efficient second story addition project for your growing Woodridge family.
Design Tips for a Seamless Second Story Addition
Designing a second story addition requires planning to make sure the new space integrates well with the rest of your home. Here are some tips to achieve a seamless look:
Match Architectural Styles: Ensure your second story matches the architecture of your existing home. Use similar materials, design elements, and colors to maintain a cohesive appearance. Consistent window styles and rooflines can help blend the old and new sections.
Plan for Functionality: Think about how you will use the new space. Common additions include extra bedrooms, bathrooms, or a home office. Position the new rooms for optimal functionality. For example, placing a bathroom near bedrooms can be practical and convenient.
Consider Natural Light: Incorporate plenty of windows and skylights to flood the new space with natural light. Proper lighting not only makes the area feel more welcoming but also ensures it doesn’t look or feel like an afterthought.
Mind the Stairs: Design stair placement carefully. Stairs should be convenient but should not disrupt the flow of the existing layout. Consider building stairs in an area that is already a natural transition space, like a hallway.
Enhance with Modern Features: Introduce modern amenities that can upgrade your home’s overall value and comfort. High-quality insulation, energy-efficient windows, and smart home features add both efficiency and luxury.
Ensuring Minimal Disruption During Construction
A second story addition can be a lengthy process, but planning can help minimize disruption to your daily life.
Create a Construction Timeline: Develop a clear timeline with your contractor. Knowing the start and completion dates and key milestones can help you stay prepared for each phase of the project.
Set Up a Temporary Living Space: If the construction proves too disruptive, consider setting up a temporary living area in another part of your home or even finding temporary accommodation. This can help maintain some semblance of normalcy during the project.
Communicate Regularly with Contractors: Maintain open lines of communication with your construction team. Regular updates and meetings can help address issues promptly and keep the project on track.
Protect Your Home: Work with your contractors to set up barriers that keep dust and debris confined to the construction area. Use protective coverings on floors and furniture to prevent damage.
Plan for Noise and Traffic: Expect increased noise and foot traffic around your home. Inform neighbors about the project and its schedule to minimize inconvenience. You could also plan activities or outings during the loudest phases of construction.
Taking these steps can help ensure that your second story addition goes smoothly without significantly disrupting your daily life. When you partner with a Design Build Remodeling Firm like J&J Construction, they will guide you through every step of the process, ensuring minimal disruption during construction.
Conclusion
Adding a second story to your Woodridge home is a practical and rewarding way to accommodate a growing family. It allows you to stay in the neighborhood you love while gaining valuable extra space. With the right planning and design, you can seamlessly integrate the new addition into your existing home, enhancing both its functionality and aesthetic.
At J&J Construction, we specialize in helping families like yours bring their renovation dreams to life. Our unique approach combines high-quality craftsmanship with personalized service.
We handle the complexities of your project, offering clear communication and a clean, protected job site. Ready to expand upwards? Contact us today to get started on your Woodridge construction. Let us help you create the home you need for your family’s future.
Download Our Free E-books
Welcome to our free e-book library, your ultimate source for home remodeling inspiration! Explore expert advice, design trends, and budgeting tips, tailored just for you.
Download now and let’s start transforming your living space together!
Our Approach
Exceptional Team, Inherent Values
In our role as a Design Build firm, we accompany you through every phase, from initial concept to the final touches of the project. With a dedicated project manager at your service, you’ll have a singular point of contact, ensuring seamless coordination. Our foremost goal is not just the completion of the project, but to ensure you enjoy the experience along the way. Here’s what you can expect:
- Access to a designer and showroom is part of the package.
- Your journey comes with a committed project manager from start to finish.
- Quality craftsmanship and an impressive 5-year warranty.
- Our system ensures your project stays on schedule and within budget.
- We maintain frequent communication to eliminate any stress or surprises. You
Remodeling Tips For Homeowners
Awards
Discover award-winning quality for Bathroom, Kitchen, and Home Remodeling in the Chicagoland Area with J&J Construction
We take pride in our exceptional work, having received the prestigious Big 50 Customer Service Excellence Award and being recognized as one of the Top 500 Remodelers in the nation by Qualified Remodeler. When you choose J&J Construction, you entrust your unique home improvement project to capable hands.
Curious about the home remodeling process? Explore our informative FAQ list here. Wondering if you are in our service area? If you are in the Chicago Western Suburbs, you are in luck. When you’re prepared for your next remodel, reach out to J&J Construction to discuss how we can transform your dreams into reality!
Top 500 Remodelers
Testimonials
Not only is the construction crew great to work with, the office staff is fantastic – very kind & willing to go the extra mile when I had crazy questions. Also, very patient with the selection process.
Huesing Family
Wheaton (2 Bathrooms)We honestly felt that we had J&J’s attention at all times during construction. We felt we were the “only ones” they were working with. 100% reliable and dependable.
Towers Family
Aurora (Sunroom)From Joe through the entire staff I could not have been happier with the response to my concerns. They took all of them seriously and worked to resolve them.
Stompanato Family
Darien (Bathroom)Our Chicagoland Service Area
Since 1992, J&J Construction has grown from a small one-man firm to one of the Chicagoland area’s largest and best-reviewed remodeling companies. We serve the entire Chicagoland area including:
- Chicagoland
- Western Chicago Suburbs
- DuPage County
- Will County
- Kane County
- Aurora
- Naperville
- North Aurora
- Montgomery
- Oswego
- Plainfield
- Woodridge
- Yorkville
- Lisle
- Bolingbrook
- Downers Grove
- Wheaton
- Burr Ridge
- Elmhurst
- Hinsdale
- Batavia
- St. Charles
Get a Quote
You may unsubscribe from these communications at any time. For more information on how to unsubscribe, our privacy practices, and how we are committed to protecting and respecting your privacy, please review our Privacy Policy.




